香溪郡,康橋的信仰平墅大宅。位于鄭州素有“長安街”之稱的金水路東段,坐擁綠博園方特游樂園等周邊一系列休閑生態資源體系。
/ 設計理念 /
世間要有光,而萬物向陽生長。人與自然的趨光性,決定了建筑是捕捉光的容器,更是光的承載體。
因此,本案以“空間向陽性”作為室內方案的設計原則,在空間原有的結構上,將室內布局盡可能地向陽光延展開來。營造生態且兼具人文創意的陽光美墅。
納萬象于方寸之間,悟生活之尋常冷暖。

/ 客廳 /

簡約而不簡單,一直是設計中的終極追求,本戶型的設計方案,在講究空間動線流暢及向光性的同時,注重空間形式感。
通過對存在事物不斷的感知,賦予空間新的靈感重塑,給空間使用者帶來另一番人居體驗。
/ 餐廳 /
客廳屬多功能空間,更是生活空間的中心,設計師將客廳與用餐區、主廚區劃分在同一區域,既保證了空間使用的流暢性,也將其二者從私人空間中分離,確保專屬區域的私密性與恬靜氛圍。
家具的搭配挑選上呼應空間的色彩調性,講究流暢的線條,崇尚少即是多,簡單質樸而不失時尚的設計理念。

/ 走廊 /


/ 休憩區 /


多功能房作為過渡區域,演繹整體戶型空間的書房角色,引入自然光線,既保證使用過程中的視線明朗,也提供了個人休憩的放空區域。
/ 主臥 /


此外,本戶型立意“鏡頭里的世界”,在注重空間上功能性設計及布局的同時,軟裝搭配上從用餐區、過渡走廊、休憩區及臥室處皆引用了富含深意的攝影作品。
“山水無言,境如禪”,豐富空間層次的同時,為空間居住者的尋常日子里增添些許朦朧的場景戲劇性,在虛與實之間,享受小空間人居的愜意,窺視萬千世界的美好。
/ 兒童房 /
/ 廚房 /

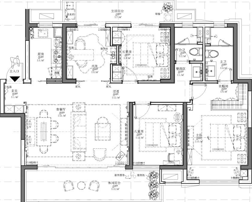
/ 平面圖 /
/ 細節圖 /


倚窗見林野,繁華入夢眠。

/ 客廳+餐廳 /
通過推拉屏障等半開放設置,打通內外空間,保證空間開闊的視野及絕佳的觀賞性。
布局上將穩定活動區——客廳及用餐區呈開放式設計,劃分在室內的陽光充足處,毗鄰休閑陽臺,空間上給人以通透之感。

/ 書室 /

除此之外,書室及長輩房劃分在毗鄰生活陽臺一處,透過自然光線優化室內環境的美感,消除人處固定空間內的枯燥感。
室外陽光帶給空閑使用者日常光照需求的同時,也給室內空間帶來了生命,加強了空間的容量與質感,隨著季節與晝夜的變化,內部空間隨之變化萬象,生機勃勃。
/ 主臥 /


主臥以一個精致、雅奢、從容的生活方式為空間主題,提取自然及生活中的新東方美學元素,構筑出藝術氤氳的舒適空間。
/ 兒童房 /

/ 平面圖 /

/ 細節圖 /
文章標題:簡約而不簡單,設計的終極追求
文章鏈接:http://www.js-pz168.com/hangye/ruanzhuangsj/n31614.html
聲明:本網站發布的內容(圖片、視頻和文字)以用戶投稿、用戶轉載內容為主,如果涉及侵權請盡快告知,我們將會在第一時間刪除。文章觀點不代表本網站立場,如需處理請聯系客服。電話:028-86922220;郵箱:631063699@qq.com。內容未經允許不得轉載,或轉載時需注明來源: 創新互聯
