
室內原始布局很不錯
擁有充足的采光
還能看到窗外的河景
只是頂部的橫梁較多看上去比較壓抑
▲房子原始狀態
經過思考設計師決定
運用天花板的造型修飾大梁
將左邊書房打開
利用天花格欄帶出空間軸線
讓生活區盡量維持開放性
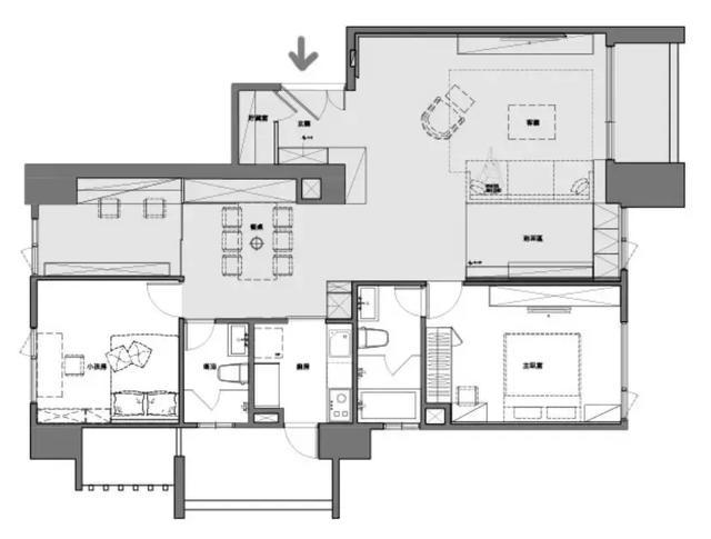
▲原始平面圖
導入水泥元素,以白色和原木色修飾
讓整個家的收納空間充足
有簡約且不復雜的視覺體驗

▲平面圖
入口玄關使用
無縫地板涂料界定落塵范圍
再以白色磚墻帶出韻味
并延伸出穿鞋椅功能


從玄關進入室內
弧形天花板弱化了頂部的橫梁
也能保留天花板之間的連貫性

客廳的電視墻
透過白色木飾面與水泥墻形成對比
刻意加厚的設計又增強了層次感

懸空的電視柜簡化了把手設計
做出柜體的輕盈質量
在沙發后依屋主的需求打造了一個茶室
抬高的地板與加寬的窗臺相連
搭配明亮的空間讓家有滿滿治愈感

茶室墻面還配置了儲物層板
能將屋主收藏的茶葉擺放在此處
搭配軌道射燈照明
形成利落唯美的展示畫面


餐廳的頂部運用格欄延伸視覺
貫穿到后方的書房空間

右邊是餐邊柜和儲物柜的整合
背后的書房玻璃移門很有通透感
讓餐廳看起來更加寬闊

書房與餐廳相鄰
穿透式的玻璃門片
不僅富有機能性
也形成趣味的延伸感

木質的書桌與餐廳之間
巧妙的做了連接設計

吊柜下方設計了燈帶
不僅有照明功能
還體現了磚墻的質感

書房內還有大面積的書架
設計師利用交錯的塊體與層板結合
制造出不對稱的錯落感
主臥室選用白色的磚墻做背景
呼應了客廳的用材
淺色系的空間利用淺紅色的壁燈點綴
在視覺上形成鮮明對比


木飾面的半墻
將床頭柜和化妝桌整合在同一個區域
化妝桌是設計師一貫的設計手法
與衣柜中的抽屜連接
是個可以放置各種小物品的設計
電視機與門片相結合
做了活動式軌道設計

經由上方的縫隙走線
在轉角處包裹軟管
避免滑動時拉扯造成故障

衣柜的下方選用懸空設計
黑色的金屬擱板
將臥室空間打造出豐富的層次感


文章名稱:115㎡簡約設計,將空間利用到極致!
網頁路徑:http://www.js-pz168.com/hangye/ruanzhuangsj/n31574.html
聲明:本網站發布的內容(圖片、視頻和文字)以用戶投稿、用戶轉載內容為主,如果涉及侵權請盡快告知,我們將會在第一時間刪除。文章觀點不代表本網站立場,如需處理請聯系客服。電話:028-86922220;郵箱:631063699@qq.com。內容未經允許不得轉載,或轉載時需注明來源: 創新互聯
