這一幢名為One Thousand Museum(千年博物館) 的62 層奢華公寓,是扎哈·哈迪德過世前,設計完成的最大的住宅設計項目。
公寓大樓位于美國邁阿密,俯瞰著由赫爾佐格德梅隆設計的佩雷斯藝術博物館。

設計始于2013年,建于 2016 年,其中包含了 83 套住宅單元,這里面有 1 套兩層樓的復式公寓,4 套連體別墅,8 套整層公寓和 70 套半層住宅單元。

One Thousand Museum 的建成,標志它成為了邁阿密建造豪華住宅公寓的典范。

這棟摩天大廈在外觀上采用了弧線形,并保持了大平面的特點,室內除了核心筒之外幾乎沒有立柱,為每個公寓創建了造型獨特的陽臺空間。


公共空間是由扎哈·哈迪德設計的,其中包括了大樓的大堂和位于 61 層上面的雙層水上運動中心和一個空中酒廊。

這棟建筑有休息室、SPA 水中心與室內游泳池、和生活方式中心和溫泉。還有私人銀行質量保險庫、多媒體劇場和私人餐廳。

大樓甚至還將提供一個私人直升機停機坪。這是目前在佛羅里達州的私人住宅摩天大樓中,唯一的停機坪。

室內設計方面也由扎哈事務所完成,富有鮮明的風格特征。



大堂就是一個震撼人心的入口,純白色的幾何流線造型結合漫反射的光源,一副極具未來感的模樣。

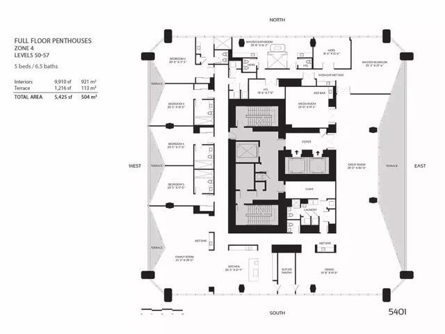
大廈的10 到 14 樓將包括聯排別墅形式性質的公寓。半層公寓將占用 15 到 49 層,50-57層為全平層公寓,復式閣樓將位于 58 和 59 層。

戶型圖 ▼
聯排別墅戶型
Townhouse Residences

結構設計由DeSimone Consulting Engineers負責。

外構架圖

預制的外墻構件▽
這些住宅每一個都有不同的陽臺空間和視覺景觀。這都是因為外部結構元素的變化。
隨著層高變化,建筑的外骨骼成為唯一元素,產生了超大露臺的獨特形狀,為每層公寓創建了豐富的室外空間。
半平層戶型
Half Floor Residences


全平層戶型
Full Floor Residences

樣板房的設計簡潔清新,大開間的室內全部采用淡色系的材質和家居來填充室內空間。
開敞的廚房和整潔的櫥柜卻有著超強的收納功能。

衛生間有著壯觀的室外景觀,同樣是干濕分離有著超大尺度的布局。

頂層復式
Duplex Penthouse

頂層公寓的面積為1420平方米,售價目前是 3.1 億人民幣。
在大廈的頂部空間, 布置有水上運動中心,藍天休憩廳。
頂樓運動中心/藍天休憩廳細節▽

在這里扎哈設計了一個多面的金屬墻雕塑,延伸到天花板上的四邊。

地燈照射在折面的金屬材質上,倒映游泳池中的水,形成了寶石般的耀眼光芒。


這棟大樓于今年初已經封頂,并計劃于 2018 年底交房。到時,我們終于能目睹扎哈設計的頂級奢華公寓樓。
網頁名稱:扎哈生前設計的最后一棟公寓樓終于封頂,一套頂層復式賣3億
網站URL:http://www.js-pz168.com/hangye/ruanzhuangsj/n31726.html
聲明:本網站發布的內容(圖片、視頻和文字)以用戶投稿、用戶轉載內容為主,如果涉及侵權請盡快告知,我們將會在第一時間刪除。文章觀點不代表本網站立場,如需處理請聯系客服。電話:028-86922220;郵箱:631063699@qq.com。內容未經允許不得轉載,或轉載時需注明來源: 創新互聯
