雙隔板雷諾護墊(綠濱墊)簡介雷諾護墊是指用于護坡且高度低于0.3m的一類石籠網,由于它先是在意大利的雷諾河使用,所以人們習慣稱之為雷諾護墊。綠濱墊這個詞則是在“中國工程建設協會標準”中出現的一個名詞,指高度低于0.45m的一類石籠網。雙隔板雷諾護墊


雙隔板雷諾護墊(綠濱墊)的計算
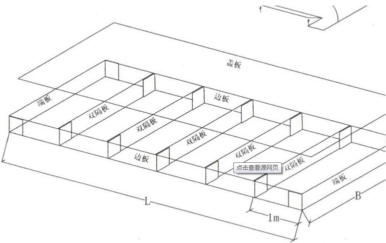
雙隔板雷諾護墊(綠濱墊)的計算可以分兩部分來計算:1.底板、邊板、側板和雙隔板這一整體的計算,即底部的計算;2.面板的計算,即蓋子的計算。
1.底部計算
底部由于是一張網片折疊而成的,所以計算底部面積就是這一張網片的面積。所以,這一張網片的長度就是雙隔板雷諾護墊(綠濱墊)的長度加上隔板展開的長度和,這張網片的寬度就是雷諾護墊(綠濱墊)的寬度加上兩個側板的高度的和。
2.蓋子計算
蓋子計算比較簡單,就是一張網片的計算,長乘寬,相信上過小學的朋友們都會。雙隔板雷諾護墊(綠濱墊)用途雙隔板雷諾護墊和雙隔板綠濱墊
主要用于河道、岸坡、路基邊坡護坡結構。既可防止河岸遭水流、風浪侵襲而破壞,又實現了水體與坡下土體間的自然對流交換功能,達到生態平衡。坡上植綠可增添景觀、綠化效果。
文章名稱:雙隔板雷諾護墊(綠濱墊)的計算
URL標題:http://www.js-pz168.com/hangye/shilongwang/n90943.html
聲明:本網站發布的內容(圖片、視頻和文字)以用戶投稿、用戶轉載內容為主,如果涉及侵權請盡快告知,我們將會在第一時間刪除。文章觀點不代表本網站立場,如需處理請聯系客服。電話:028-86922220;郵箱:631063699@qq.com。內容未經允許不得轉載,或轉載時需注明來源: 創新互聯
